Bürofläche am KiWi Tower
24106 Kiel, Büro/Praxis zur Miete
Bürofläche am KiWi Tower
Kosten
3-fache Bruttomonatsmiete
Bausubstanz & Energieausweis
Lage
Das Gebäude ist im nördlichen Teil der Landeshauptstadt Kiel, im Stadtteil Wik gelegen. Die Kieler Förde und der Nord-Ostsee-Kanal befinden sich in unmittelbarer Nähe. Die Infrastruktur ist als gut zu bezeichnen. Öffentliche Verkehrsmittel befinden sich fünf Gehminuten entfernt. Zur B76 sind es ca. drei PKW-Minuten, zur Autobahn A215 rund zehn Minuten. Die Anbindungen an den Flughafen Kiel sowie den Hauptbahnhof sind auch per ÖPNV gegeben.
Ausstattung
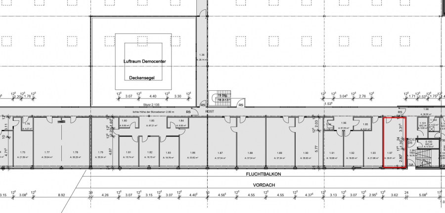
Die hellen und freundlichen Büroräume sind mit Textilauslegeware ausgestattet. Sie befinden sich im 1. Obergeschoss. Zur gemeinschaftlichen Nutzung durch die Mieter steht ein Parkhaus, ein moderner Empfangsbereich, sanitäre Anlagen, Sitzecken, Serverräume und Teeküchen zur Verfügung. Im Gebäude befindet sich eine Kantine. Ein Zugang ist an sieben Tagen die Woche rund um die Uhr möglich. Im Nachbargebäude kann ein Konferenzraum stunden- oder tageweise angemietet werden. Über den lokalen Telefonanbieter „TNG“ kann eine 100 Mbit Datenleitung nebst Telefonanschluss zur Verfügung gestellt werden. Die Anmietung weiterer Räume ist möglich.
Umgebungskarte
Ansprechpartner
Frau Immobilien Managerin Katharina Hahn
0+49 431 556811 - 26
k.hahn@dc-services.de






