CITY-HOF-HAUS: attraktive Bürofläche in zentraler Lage in der Kieler Innenstadt
24103 Kiel, Bürofläche zur Miete
CITY-HOF-HAUS: attraktive Bürofläche in zentraler Lage in der Kieler Innenstadt
Kosten
Bausubstanz & Energieausweis
Beschreibung
Die Büroräume befinden sich in einem 1995 gebauten sechsgeschossigen Büro- und Geschäftshaus.
Lage
Diese helle Büro- und Praxisfläche befindet sich in einem sehr gepflegten Bürohaus in exponierter Innenstadt-Lage in der Kieler Innenstadt mit guter Anbindung an den öffentlichen Personennahverkehr.
Ausstattung
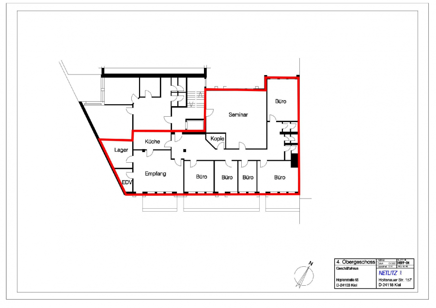
Die insgesamt ca. 297m² im 4. Obergeschoss verteilen sich auf den Empfangsbereich und sechs gut geschnittene Büroräume und einen großen Seminar- oder Besprechungsraum, die gut über den vorhandenen Aufzug erreicht werden können. In der Mietfläche befinden sich je ein Damen- und Herren-WC. Im 1.OG steht ein Behinderten-WC zur Verfügung, dieses ist per Aufzug erreichbar. Weiterhin ist eine Teeküche vorhanden.
Umgebungskarte
Ansprechpartner
Frau Immobilien Managerin Lara Hensel
0+49 431 556811 - 56
l.hensel@dc-services.de






